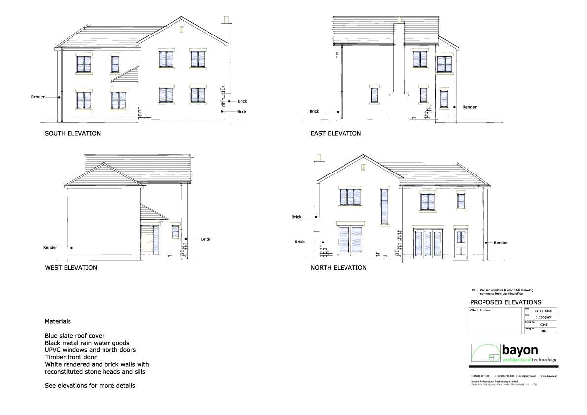
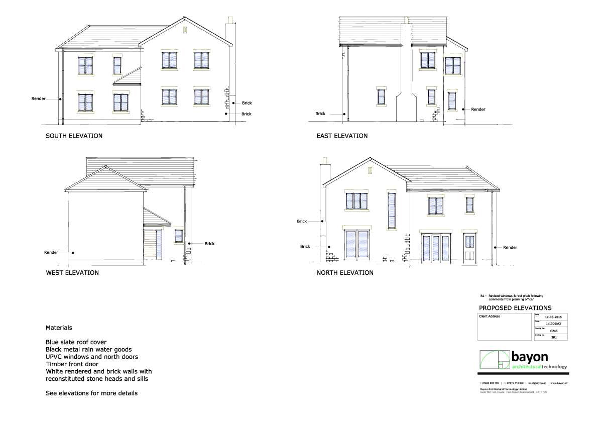
May 19, 2015New build detached house Full planning approval obtained for a new 4 bedroom dwelling in an unused side garden in Macclesfield.